Wyszukiwarka

Kategorie

Gdynia, Chylonia, Kartuska - Mieszkanie na sprzedaż

Data dodania: 11.03.2026
Numer Oferty: 32/7963/OMS

Informacje:

Cena:

875 000 PLN

Powierzchnia:

105.70 m²

Liczba pokoi:

5

Piętro:

0 / 1

Rok budowy:

1947

Opis:

Mieszkanie z olbrzymim potencjałem. Garaż w cenie.
Tylko u nas – nie szukaj dalej.
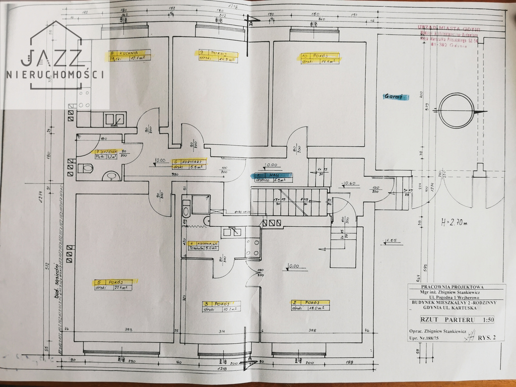
Pięciopokojowe mieszkanie na parterze o pow. 105,7 m2 na ul. Kartuskiej w Gdyni.
Mieszkanie można zaadaptować na lokal usługowy z witryną i wejściem od ulicy lub na 3 oddzielne mieszkania.
Mieszkanie posiada własną księgę wieczystą, uregulowany stan prawny, brak osób zameldowanych.
Lokal do remontu.
Wydanie natychmiastowe.

Lokalizacja:
ul. Kartuska położona jest w gdyńskiej dzielnicy Chylonia.
Pełna infrastruktura w okolicy: sklep spożywczy, punkty usługowe, przedszkole, szkoła, przychodnia.
Przystanki autobusowe i trolejbusowe w zasięgu max. do 2 minut spaceru.
Dojście do przystanku SKM zajmuje około 2-3 minut.

Budynek i Otoczenie:
Budynek wybudowany w latach 40tych XX wieku.
Łącznie tylko 2 lokale mieszkalne w budynku.
Na zapleczu teren zielony, zieleniec do wspólnego korzystania.
Strop w budynku betonowy.
Budynek podpiwniczony.

Mieszkanie:
Mieszkanie dwustronne, ekspozycja okien: wschód– zachód.
Kondygnacja: parter.
Powierzchnia mieszkania: 105,7 m2.
Wysokość mieszkania (lokalu): od 3m do 2,75m.
Wysokość lokalu można zwiększyć o kilka centymetrów.
Dwie kuchnie i dwie łazienki.
Garaż, dodatkowo, drugie miejsce postojowe przed garażem.
Piwnica około 25 m2 mieszcząca się bezpośrednio pod mieszkaniem
Okna: PVC oraz drewniane.
Ogrzewanie i ciepła woda – C.O miejskie z sieci, węzeł C.O. w piwnicy.
Gaz: tak - z sieci gazowej.
Opłaty C.O.: 220 lato / 360 zima.

Układ pomieszczeń:
Pokój – 22,40 m2
Pokój – 18,00 m2
Pokój – 14,90 m2
Pokój – 14,40 m2
Pokój – 10,20 m2
Korytarz – 5,50 m2
Łazienka – 3,20 m2
Kuchnia z WC – 5,00m2
Kuchnia – 12,10 m2
Dodatkowo:
Garaż – około 25 m2
Piwnica – około 25m2
Łączna powierzchnia mieszkania zapisana w księdze wieczystej wynosi: 105,70 m2.
Istnieje możliwość połączenia dwóch części mieszkania lub wydzielenia 3 oddzielnych mieszkań.
Stan mieszkania – do remontu.

Mieszkanie posiada księgę wieczystą (nie jest to udział), uregulowany stan prawny – działy III i IV wolne od wpisów, brak osób zameldowanych w lokalu. Wydanie natychmiastowe.

Zapraszamy Serdecznie JAZZ NIERUCHOMOŚCI.

Kupuj Bezpiecznie – kupując z JAZZ NIERUCHOMOŚCI otrzymujesz:
- opiekę licencjonowanego Pośrednika – nr licencji: 20176 – gwarancja bezpiecznej transakcji.
- doradztwo prawne
- doradztwo przy zakupie nieruchomości pod inwestycję
- pomoc w uzyskaniu kredytu i finansowania zakupu nieruchomości
- pomoc w zakresie formalności związanych z zakupem
- dodatkowe zdjęcia, plany i rzuty nieruchomości
- wsparcie na każdym etapie transakcji
Niniejsze ogłoszenie nie stanowi oferty w rozumieniu Kodeksu Cywilnego i ma charakter jedynie informacyjny.
Niniejsze materiały stanowią tajemnicę przedsiębiorstwa JAZZ NIERUCHOMOŚCI w rozumieniu ustawy z dnia 16 kwietnia 1993 r. o zwalczaniu nieuczciwej konkurencji (Dz. U. z 2003 r., Nr 153, poz. 1503 z późn. zm.).



Świadectwo charakterystyki energetycznej - zapotrzebowanie na energię:

EU - użytkową (kWh/m2*rok): 331.30; EK - końcową (kWh/m2*rok): 427.10; EP - nieodnawialną energię pierwotną (kWh/m2*rok): 341.68; EC02 - Wielkość emisji CO2 (t C02/m2*rok): 0.14; UOZE - Udział odnawialnych źródeł energii w zapotrzebowaniu na energię końcową [%]: 0.00;

Kontakt:
Szymon Szyndler
tel: +48604322346
szymon.szyn@wp.pl

Lokalizacja: Gdynia, Chylonia, Kartuska

Formularz Kontaktowy